|
39.82 millió Ft
|
|
| Alapterület | 463 982 m2 |
| Szobák száma | nincs megadva |
| Építési mód | Tégla |
| Állapot | Új építésű |
| Emelet | nincs megadva |
További paraméterek
Otthon Start 3%-os hitellel- Fűtés: Hőszivattyú
- Komfort: Összkomfort
Részletes leírás
Cserkeszőlő szívében, a fürdőhöz közel, kiemelt pihenőövezetben épül az Akácliget lakópark, ahol kényelmes, otthonos lakások várják új lakóikat. A lakópark saját játszótérrel és medencével készül, így családoknak és befektetőknek egyaránt kiváló választás.
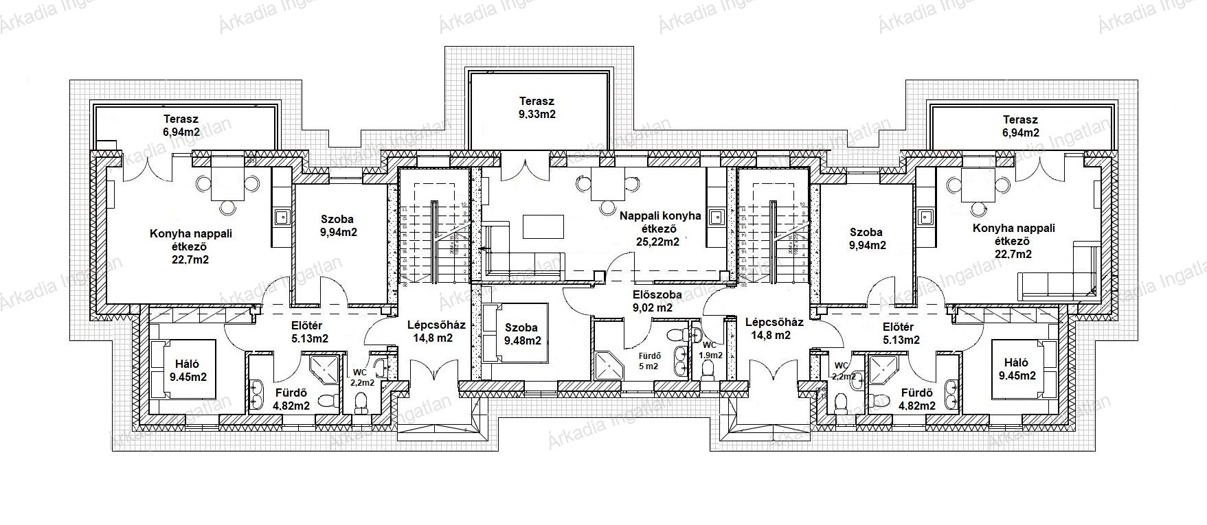
Az épület földszint plusz két emelet, a lakások két méretben elérhetők, 45m2 és 54m2.
Burkolatok: Egyénileg választható, az árban bruttó 5.000.-Ft/m kerül elszámolásra.
Fűtés.: Alapesetben hőszivattyús, lakásonként mérővel, később amennyiben kapunk engedélyt, Termál vízfűtésre szeretnénk átállni. Műszaki megoldás: Padlófűtés
Parkoló: Lakásonként 1 db ingyenes a lakóparkban.
Földszinti lakásoknál 90 m2 kert kizárólagos használata, díj ellenében.
Az „A” épület kivitelezése 2025. július 01.-el indul, befejezés 2026 szeptember 30.
A lakópark végleges formában összesen 48 lakás készül. A teljes projekt befejezésével egyidőben, elkészül a medence, illetve a játszótér, valamint a parkosítás is.
A fizetés rugalmasan, mindig az építkezés aktuális készültségi fokához igazodva történik. A lakásokhoz igénybe vehető a CSOK Plusz és a 3%-os kamattámogatott hitel is.
Az Árkádia Ingatlan Iroda teljes körű szolgáltatással segíti ügyfeleit: a hitelügyintézéstől az ingatlan értékbecslésen át egészen az energetikai tanúsítvány elkészítéséig mindenben számíthat ránk.
A Cserkeszőlői gyógyvíz magas ásványianyag-tartalmának köszönhetően jótékonyan hat a szervezetre. Nem véletlen, hogy egyre többen választják Cserkeszőlőt otthonuknak vagy befektetésük helyszínéül – itt valóban jó élni és jó befektetni.

